Top.Mail.Ru
menu menu close
+7 (495) 363-10-03 Заказать звонок

1-комнатная квартира, 9 этаж, 30.5 м2

Пирогово д., Ильинского ул., д. 8, ЖК Пироговская Ривьера (строительный адрес: корпус 15)

Лот нов-794577

6 383 201

Продажа 1-комнатной квартиры, 30.5 м², этаж 9/9

6 383 201 8 289 872

209 285 ₽/м2

Лот нов-794577
Отправить себе
Ипотека
Рассрочка

6 383 201 8 289 872

209 285 ₽/м2

Продажа 1-комнатной квартиры, 30.5 м², этаж 9/9

Лот нов-794577
Акция

Скидка до 26%

Отправить себе
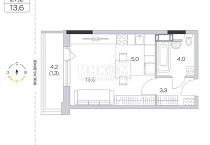
Комнат
1
Общая
30.5
Жилая
15.8
Кухня
5
Этаж
9/9

Описание

Продается квартира-студия №313, 30,5кв.м. в современном жилом комплексе комфорт-класса «Пироговская Ривьера». Проект реализуется авторитетным застройщиком ООО «Специализированный застройщик «КомфортИнвест» на просторной территории в 49 гектаров. Жилой квартал состоит из 20 монолитных домов высотой от 6 до 9 этажей. Каждый дом отличается продуманными планировками, просторными балконами и удобными кладовыми помещениями. Особое преимущество комплекса — видовые квартиры с живописными панорамами. Расположение комплекса особенно привлекательно: всего 12 километров от МКАД по Осташковскому шоссе. Транспортная доступность на высоте — остановка общественного транспорта находится в 100 метрах от жилого комплекса. Путь до железнодорожной станции «Мытищи» займет 20 минут, а до станции метро «Медведково» время в пути 25 минут. Автомобилисты оценят удобный выезд к станциям метро «Физтех», «Алтуфьево», «Свиблово», «Бабушкинская» и «Бибирево» через новую транспортную хорду между Ярославским и Дмитровским шоссе. Инфраструктура «Пироговской Ривьеры» создает все условия для комфортной жизни. На территории работает детский сад, готовится строительство второго дошкольного учреждения. В 2026 году планируется ввод в эксплуатацию муниципальной школы. Для активного отдыха оборудованы современные детские и спортивные площадки. В жилом комплексе действуют взрослые и детские поликлиники, торговые точки, кафе и пункты выдачи товаров. В ближайших планах — строительство многоэтажного крытого паркинга. Особую привлекательность комплексу придает его расположение: всего в 300 метрах находится красивый благоустроенный пляж Пироговского водохранилища с большим выбором летних водных развлечений. Окружение из соснового леса создает превосходную экологическую обстановку, наполняя воздух целебным ароматом хвои. Для будущих жителей возможен выбор квартир с ремонтом или в черновой отделке.  Для удобства покупателей доступны различные варианты приобретения, включая ипотеку, рассрочку и специальные скидки от застройщика.

Подробная информация о ЖК Пироговская Ривьера

Общая информация

Объект
Квартира
Тип
Новостройка
Лот №
нов-794577
Особенности
Студия
Этаж
9/9
Площадь
Общая 30.5 м2
Жилая 15.8 м2
Кухня 5 м2
Серия/тип дома
Монолитно-панельный
Степень готовности
Сдан
Лифт
1
Рассрочка
Рассрочка на 2 года. ПВ от 20%, 10% на остаток.

Хотите продать похожую 1-комнатную квартиру в этом районе?

Бесплатно оценить

Похожие предложения

Индивидуальный подбор недвижимости

Заявка успешно отправлена.
Мы обрабатываем заявки ежедневно с 9:00 до 21:00.
Наверх
Мы используем cookie-файлы, чтобы вам было проще работать с сайтом. Узнать больше
К сайту подключен сервис Яндекс.Метрика, который также использует файлы cookie. Узнать больше
Согласен
Согласен
Согласие на обработку персональных данных с помощью сервиса «Яндекс.Метрика»

Я (далее — «Пользователь» или «Субъект персональных данных») при использовании сайта https://www.incom.ru (далее — «Сайт») даю свое согласие на обработку персональных данных посредством сервисом веб-аналитики «Яндекс.Метрика», предоставляемый компанией ООО «ЯНДЕКС», (119021, г. Москва, вн. тер. г. Муниципальный Округ Хамовники, ул. Льва Толстого, д. 16), Союзу содействия развитию рынка недвижимости «ИНКОМ-НЕДВИЖИМОСТЬ» (ИНН 7719020591, 105318, г. Москва, ул. Щербаковская, д. 3) , со следующими условиями.

1. Категории обрабатываемых данных: IP-адрес, информация из файлов cookie, информация о браузере пользователя (или иной программе, с помощью которой осуществляется доступ к сервисам Сайта), информация об аппаратном и программном обеспечении устройства пользователя, время доступа, адреса запрашиваемых страниц.

2. Цель обработки персональных данных: анализ пользовательской активности с помощью сервиса «Яндекс.Метрика».

3. Способы обработки: сбор, запись, систематизация, накопление, хранение, уточнение (обновление, изменение), извлечение, использование, обезличивание, передача (доступ, предоставление), блокирование, удаление, уничтожение персональных данных.

4. Срок обработки и хранения: до получения от субъекта персональных данных требования о прекращении обработки/отзыва согласия.

5. Способ отзыва: заявление об отзыве в письменном виде путём его направления на адрес электронной почты: pr@incom.ru или путем письменного обращения по адресу: 105318, г. Москва, ул. Щербаковская, д. 3.

6. Субъект персональных данных вправе запретить своему оборудованию прием этих данных или ограничить прием этих данных. При отказе от получения таких данных или при ограничении приема данных некоторые функции Сайта могут работать некорректно. Субъект персональных данных обязуется сам настроить свое оборудование таким способом, чтобы оно обеспечивало адекватный его желаниям режим работы и уровень защиты данных файлов «cookie», а Организация не предоставляет технологических и правовых консультаций на темы подобного характера.

7. Порядок уничтожения персональных данных при достижении цели их обработки или при наступлении иных законных оснований: лицо, ответственное за обработку персональных данных, производит стирание данных методом перезаписи (замена всех единиц хранения информации на «0») с составлением акта об уничтожении персональных данных.

8. Я согласен/согласна квалифицировать в качестве своей простой электронной подписи под настоящим Согласием выполнение мною следующего действия на сайте https://www.incom.ru: нажатие мною на интерфейсе с текстом «К сайту подключен сервис Яндекс.Метрика, который также использует файлы cookie» на элемент с текстом «Согласен».

Соглашение об использовании cookie-файлов
1. Общие сведения

На Сайте компании Союза содействия развитию рынка недвижимости «ИНКОМ-НЕДВИЖИМОСТЬ» (в дальнейшем — Компания) применяется технология сбора информации с использованием cookie-файлов, которая позволяет повысить эффективность Сайта и Сервисов Компании. Сookie-файлы - это небольшие текстовые файлы, размещаемые на пользовательском устройстве веб-сайтами, которые посещались пользователем. Они широко используются для того, чтобы веб-сайты могли работать эффективнее, а также, чтобы предоставлять необходимую информацию владельцам, администрации веб-сайта. Использование cookie-файлов - стандартная на данный момент практика для большинства веб-сайтов. Посещая Сайт Компании пользователь соглашается с условиями использования cookie-файлов, описанными в настоящем документе, в том числе с тем, что Компания может использовать cookie-файлы и иные данные для их последующей обработки, а также может передавать их третьим лицам для проведения исследований и предоставления услуг Партнерами Компании.

2. Цели использования cookie-файлов

Целями использования cookie-файлов на Сайте Компании являются:

Для достижения указанных целей, собираемые данные могут передаваться Партнерам Компании, которые оказывают помощь Компании в предоставлении услуг. К категориям таких получателей относятся: веб-аналитика, обработка данных, реклама, информационные и рекламные рассылки и другие услуги.

3. Прекращение использования cookie-файлов

На Сайте Компании используются cookie-файлы двух разных типов:

Прекращение использования cookie-файлов на Сайте Компании возможно путем:

Отключение используемых Сайтами Компании cookie-файлов может привести к снижению удобства использования Сайта. Большинство браузеров позволяют просматривать, удалять и блокировать cookie-файлы c веб-сайтов. Информация по управлению cookie-файлами может быть найдена в документации на используемый браузер.

Ваш браузер устарел

ИНКОМ-Недвижимость больше не поддерживает Internet Explorer. Для удобного взаимодействия с сайтом установите один из браузеров ниже: