Top.Mail.Ru
menu menu close

Продажа дома, 164 м², 6.3 сотки

Москва, Троицкий административный округ, район Бекасово, коттеджный посёлок Фаворит, 15

нп-0023464

19 400 000 ₽

Продажа дома, 164 м², 6.3 сотки

19 400 000

Лот нп-0023464
Отправить себе
Вторичная продажа
Москва, Троицкий административный округ, район Бекасово, коттеджный посёлок Фаворит, 15 Ж/д станция Рассудово (Киевское напр.), 20 мин. транспортом
Ипотека

19 400 000

Продажа дома, 164 м², 6.3 сотки

Лот нп-0023464
Отправить себе
1/15
Лот нп-0023464

Продажа дома, 164 м², 6.3 сотки

19 400 000

Продажа дома, 164 м², 6.3 сотки

Вторичная продажа
Участок
6.3 сотки
Земли
Под дачное строительство
Дом
164 м²
Этажей
2
Спален
4
Москва, Троицкий административный округ, район Бекасово, коттеджный посёлок Фаворит, 15 Ж/д станция Рассудово (Киевское напр.), 20 мин. транспортом
Участок
6.3 сотки
Земли
Под дачное строительство
Дом
164 м²
Этажей
2
Спален
4

Описание

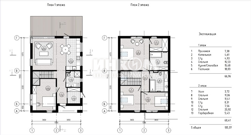
Номер лота: нп-0023464. Новый дом, в заповедном районе Новой Москвы, 38 км от МКАД по скоростному Киевскому шоссе. Коттедж расположен в новой очереди охраняемого посёлка. Рядом - лес, озеро с прогулочными тропами, на территории посёлка обустраиваются игровые и детские площадки. Дом имеет все необходимые коммуникации: магистральный газ, поселковые водоснабжение, канализацию, электричество ( 10 Квт +), интернет. Дом готов к внутренней отделке, построен из качественных бетонных блоков с отделкой термо-панелями и клинкерным кирпичом. На первом этаже: Прихожая, Кухня-столовая, Гостиная, Спальня, Котельная На втором этаже: Холл, три Спальни, Гардеробная, Два санузла Рядом с посёлком находится остановка общественного транспорта, проходят велосипедные маршруты, пролегают грибные места. В непосредственной близости расположены поселения: Ярцевское, Ново-Глаголево, Апрелевка, Селятино, административный центр Троицк с развитой инфраструктурой ( детские сады, школы, медицинские и спортивные центры, рестораны). Отличное место как для круглогодичного проживания, так и для дачи., Оперативный показ, помощь в получении льготной ипотеки, бесплатное юридическое сопровождение от компании ИНКОМ недвижимость. Звоните !

Общая информация

Объект
Дом
Лот
нп-0023464
Тип
Вторичная продажа
Дом
164 м²
Площадь участка
6.3 сотки
Земли
Под дачное строительство
Этажей
2
Спален
4

Коммуникации

Электричество Есть
Водопровод Центральный
Канализация Центральная
Газопровод Магистральный
Отопление В перспективе
Хотите продать похожий дом в этом районе? Бесплатно оценить

Похожие предложения

Индивидуальный подбор недвижимости

Заявка успешно отправлена
и будет обработана в будни с 9 до 21, в выходные с 10 до 17
Заявка успешно отправлена.
Мы обрабатываем заявки ежедневно с 9:00 до 21:00.
Закрыть
Наверх
Мы используем cookie-файлы, чтобы вам было проще работать с сайтом. Узнать больше
К сайту подключен сервис Яндекс.Метрика, который также использует файлы cookie. Узнать больше
Согласен
Согласен
Согласие на обработку персональных данных с помощью сервиса «Яндекс.Метрика»

Я (далее — «Пользователь» или «Субъект персональных данных») при использовании сайта https://www.incom.ru (далее — «Сайт») даю свое согласие на обработку персональных данных посредством сервисом веб-аналитики «Яндекс.Метрика», предоставляемый компанией ООО «ЯНДЕКС», (119021, г. Москва, вн. тер. г. Муниципальный Округ Хамовники, ул. Льва Толстого, д. 16), Союзу содействия развитию рынка недвижимости «ИНКОМ-НЕДВИЖИМОСТЬ» (ИНН 7719020591, 105318, г. Москва, ул. Щербаковская, д. 3) , со следующими условиями.

1. Категории обрабатываемых данных: IP-адрес, информация из файлов cookie, информация о браузере пользователя (или иной программе, с помощью которой осуществляется доступ к сервисам Сайта), информация об аппаратном и программном обеспечении устройства пользователя, время доступа, адреса запрашиваемых страниц.

2. Цель обработки персональных данных: анализ пользовательской активности с помощью сервиса «Яндекс.Метрика».

3. Способы обработки: сбор, запись, систематизация, накопление, хранение, уточнение (обновление, изменение), извлечение, использование, обезличивание, передача (доступ, предоставление), блокирование, удаление, уничтожение персональных данных.

4. Срок обработки и хранения: до получения от субъекта персональных данных требования о прекращении обработки/отзыва согласия.

5. Способ отзыва: заявление об отзыве в письменном виде путём его направления на адрес электронной почты: pr@incom.ru или путем письменного обращения по адресу: 105318, г. Москва, ул. Щербаковская, д. 3.

6. Субъект персональных данных вправе запретить своему оборудованию прием этих данных или ограничить прием этих данных. При отказе от получения таких данных или при ограничении приема данных некоторые функции Сайта могут работать некорректно. Субъект персональных данных обязуется сам настроить свое оборудование таким способом, чтобы оно обеспечивало адекватный его желаниям режим работы и уровень защиты данных файлов «cookie», а Организация не предоставляет технологических и правовых консультаций на темы подобного характера.

7. Порядок уничтожения персональных данных при достижении цели их обработки или при наступлении иных законных оснований: лицо, ответственное за обработку персональных данных, производит стирание данных методом перезаписи (замена всех единиц хранения информации на «0») с составлением акта об уничтожении персональных данных.

8. Я согласен/согласна квалифицировать в качестве своей простой электронной подписи под настоящим Согласием выполнение мною следующего действия на сайте https://www.incom.ru: нажатие мною на интерфейсе с текстом «К сайту подключен сервис Яндекс.Метрика, который также использует файлы cookie» на элемент с текстом «Согласен».

Соглашение об использовании cookie-файлов
1. Общие сведения

На Сайте компании Союза содействия развитию рынка недвижимости «ИНКОМ-НЕДВИЖИМОСТЬ» (в дальнейшем — Компания) применяется технология сбора информации с использованием cookie-файлов, которая позволяет повысить эффективность Сайта и Сервисов Компании. Сookie-файлы - это небольшие текстовые файлы, размещаемые на пользовательском устройстве веб-сайтами, которые посещались пользователем. Они широко используются для того, чтобы веб-сайты могли работать эффективнее, а также, чтобы предоставлять необходимую информацию владельцам, администрации веб-сайта. Использование cookie-файлов - стандартная на данный момент практика для большинства веб-сайтов. Посещая Сайт Компании пользователь соглашается с условиями использования cookie-файлов, описанными в настоящем документе, в том числе с тем, что Компания может использовать cookie-файлы и иные данные для их последующей обработки, а также может передавать их третьим лицам для проведения исследований и предоставления услуг Партнерами Компании.

2. Цели использования cookie-файлов

Целями использования cookie-файлов на Сайте Компании являются:

Для достижения указанных целей, собираемые данные могут передаваться Партнерам Компании, которые оказывают помощь Компании в предоставлении услуг. К категориям таких получателей относятся: веб-аналитика, обработка данных, реклама, информационные и рекламные рассылки и другие услуги.

3. Прекращение использования cookie-файлов

На Сайте Компании используются cookie-файлы двух разных типов:

Прекращение использования cookie-файлов на Сайте Компании возможно путем:

Отключение используемых Сайтами Компании cookie-файлов может привести к снижению удобства использования Сайта. Большинство браузеров позволяют просматривать, удалять и блокировать cookie-файлы c веб-сайтов. Информация по управлению cookie-файлами может быть найдена в документации на используемый браузер.

Ваш браузер устарел

ИНКОМ-Недвижимость больше не поддерживает Internet Explorer. Для удобного взаимодействия с сайтом установите один из браузеров ниже: