Top.Mail.Ru
menu menu close

Продажа дома, 193.7 м², 5.6 сотки

Москва, Новомосковский административный округ, Филимонковский район, СНТ Маяк-Бурцево, 121

нп-0024020

33 000 000 ₽

Продажа дома, 193.7 м², 5.6 сотки

33 000 000

Лот нп-0024020
Отправить себе
Вторичная продажа
Москва, Новомосковский административный округ, Филимонковский район, СНТ Маяк-Бурцево, 121
Ипотека

33 000 000

Продажа дома, 193.7 м², 5.6 сотки

Лот нп-0024020
Отправить себе

Продажа дома, 193.7 м², 5.6 сотки

33 000 000

Продажа дома, 193.7 м², 5.6 сотки

Вторичная продажа
Участок
5.6 сотки
Земли
Для садоводства
Дом
193.7 м²
Этажей
2
Москва, Новомосковский административный округ, Филимонковский район, СНТ Маяк-Бурцево, 121
Участок
5.6 сотки
Земли
Для садоводства
Дом
193.7 м²
Этажей
2

Описание

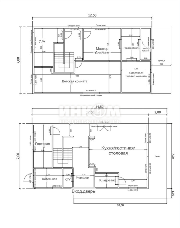
Номер лота: нп-0024020. Продается земельный участок с домом в кооперативе "МАЯК-БУРЦЕВО" в 14 км от МКАД, территория Москвы, Московская прописка с огороженной территорией и въездом через автоматические ворота. По Киевскому шоссе можно напрямую доехать до аэропорта Внуково и станции метро Саларьево, есть выезд на Калужское шоссе по новой трассе Середнево-Марьино-Десна и доступ к станции метро Теплый стан. В пешей доступности лесные массивы, пруд с пляжем и лодками, пруд для рыбалки, автобусная остановка Современный каркасный дом в 2 этажа 2022 года постройки. На первом этаже расположены огромный холл со встроенными шкафами, кухня-гостиная 40 м кв с панорамными окнами и с выходом на крытую террасу, гостевая комната 14 м кв, санузел 4 м кв, кладовая и котельная. На втором этаже детская комната 26 м кв ( можно разделить на две), мастер-спальня 18 м кв с отдельной гардеробной 7 м кв, комнатой 12 м кв (релакс, спорт зал или кабинет- на ваш вкус) и выходом на балкон, огромный санузел 9 м кв. Во дворе парковка на три авто, на участке газон, откатные автоматические ворота. Коммуникации: электричество 15 кВт 3 фазы, центральная канализация, электрическое отопление, дренаж участка, газ по границе участка. Круглогодичный подъезд, вся дороги асфальтированы, в поселке все живут круглогодично. Дом строили исключительно для собственного проживания, дизайнерский ремонт. Вся мебель и техника входят в стоимость. Свободная продажа, обременений и долгов нет!!!

Общая информация

Объект
Дом
Лот
нп-0024020
Тип
Вторичная продажа
Дом
193.7 м²
Площадь участка
5.6 сотки
Земли
Для садоводства
Этажей
2
Год постройки
2022

Коммуникации

Электричество 380 В
Канализация Центральная
Газопровод По границе участка
Отопление Электрокотел
Хотите продать похожий дом в этом районе? Бесплатно оценить

Похожие предложения

Индивидуальный подбор недвижимости

Заявка успешно отправлена
и будет обработана в будни с 9 до 21, в выходные с 10 до 17
Заявка успешно отправлена.
Мы обрабатываем заявки ежедневно с 9:00 до 21:00.
Закрыть
Наверх
Мы используем cookie-файлы, чтобы вам было проще работать с сайтом. Узнать больше
К сайту подключен сервис Яндекс.Метрика, который также использует файлы cookie. Узнать больше
Согласен
Согласен
Согласие на обработку персональных данных с помощью сервиса «Яндекс.Метрика»

Я (далее — «Пользователь» или «Субъект персональных данных») при использовании сайта https://www.incom.ru (далее — «Сайт») даю свое согласие на обработку персональных данных посредством сервисом веб-аналитики «Яндекс.Метрика», предоставляемый компанией ООО «ЯНДЕКС», (119021, г. Москва, вн. тер. г. Муниципальный Округ Хамовники, ул. Льва Толстого, д. 16), Союзу содействия развитию рынка недвижимости «ИНКОМ-НЕДВИЖИМОСТЬ» (ИНН 7719020591, 105318, г. Москва, ул. Щербаковская, д. 3) , со следующими условиями.

1. Категории обрабатываемых данных: IP-адрес, информация из файлов cookie, информация о браузере пользователя (или иной программе, с помощью которой осуществляется доступ к сервисам Сайта), информация об аппаратном и программном обеспечении устройства пользователя, время доступа, адреса запрашиваемых страниц.

2. Цель обработки персональных данных: анализ пользовательской активности с помощью сервиса «Яндекс.Метрика».

3. Способы обработки: сбор, запись, систематизация, накопление, хранение, уточнение (обновление, изменение), извлечение, использование, обезличивание, передача (доступ, предоставление), блокирование, удаление, уничтожение персональных данных.

4. Срок обработки и хранения: до получения от субъекта персональных данных требования о прекращении обработки/отзыва согласия.

5. Способ отзыва: заявление об отзыве в письменном виде путём его направления на адрес электронной почты: pr@incom.ru или путем письменного обращения по адресу: 105318, г. Москва, ул. Щербаковская, д. 3.

6. Субъект персональных данных вправе запретить своему оборудованию прием этих данных или ограничить прием этих данных. При отказе от получения таких данных или при ограничении приема данных некоторые функции Сайта могут работать некорректно. Субъект персональных данных обязуется сам настроить свое оборудование таким способом, чтобы оно обеспечивало адекватный его желаниям режим работы и уровень защиты данных файлов «cookie», а Организация не предоставляет технологических и правовых консультаций на темы подобного характера.

7. Порядок уничтожения персональных данных при достижении цели их обработки или при наступлении иных законных оснований: лицо, ответственное за обработку персональных данных, производит стирание данных методом перезаписи (замена всех единиц хранения информации на «0») с составлением акта об уничтожении персональных данных.

8. Я согласен/согласна квалифицировать в качестве своей простой электронной подписи под настоящим Согласием выполнение мною следующего действия на сайте https://www.incom.ru: нажатие мною на интерфейсе с текстом «К сайту подключен сервис Яндекс.Метрика, который также использует файлы cookie» на элемент с текстом «Согласен».

Соглашение об использовании cookie-файлов
1. Общие сведения

На Сайте компании Союза содействия развитию рынка недвижимости «ИНКОМ-НЕДВИЖИМОСТЬ» (в дальнейшем — Компания) применяется технология сбора информации с использованием cookie-файлов, которая позволяет повысить эффективность Сайта и Сервисов Компании. Сookie-файлы - это небольшие текстовые файлы, размещаемые на пользовательском устройстве веб-сайтами, которые посещались пользователем. Они широко используются для того, чтобы веб-сайты могли работать эффективнее, а также, чтобы предоставлять необходимую информацию владельцам, администрации веб-сайта. Использование cookie-файлов - стандартная на данный момент практика для большинства веб-сайтов. Посещая Сайт Компании пользователь соглашается с условиями использования cookie-файлов, описанными в настоящем документе, в том числе с тем, что Компания может использовать cookie-файлы и иные данные для их последующей обработки, а также может передавать их третьим лицам для проведения исследований и предоставления услуг Партнерами Компании.

2. Цели использования cookie-файлов

Целями использования cookie-файлов на Сайте Компании являются:

Для достижения указанных целей, собираемые данные могут передаваться Партнерам Компании, которые оказывают помощь Компании в предоставлении услуг. К категориям таких получателей относятся: веб-аналитика, обработка данных, реклама, информационные и рекламные рассылки и другие услуги.

3. Прекращение использования cookie-файлов

На Сайте Компании используются cookie-файлы двух разных типов:

Прекращение использования cookie-файлов на Сайте Компании возможно путем:

Отключение используемых Сайтами Компании cookie-файлов может привести к снижению удобства использования Сайта. Большинство браузеров позволяют просматривать, удалять и блокировать cookie-файлы c веб-сайтов. Информация по управлению cookie-файлами может быть найдена в документации на используемый браузер.

Ваш браузер устарел

ИНКОМ-Недвижимость больше не поддерживает Internet Explorer. Для удобного взаимодействия с сайтом установите один из браузеров ниже: